Trilocale in vendita

Trofarello, Via Torino
€ 129.000
3 locali 3 locali
65 Mq 65 Mq
1 bagno 1 bagno

Trilocale in vendita

Trofarello, Via Torino

Descrizione annuncio

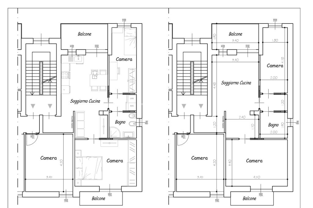
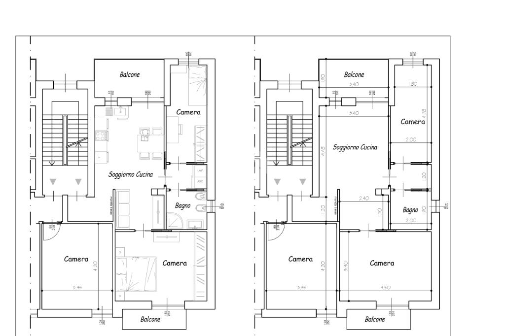
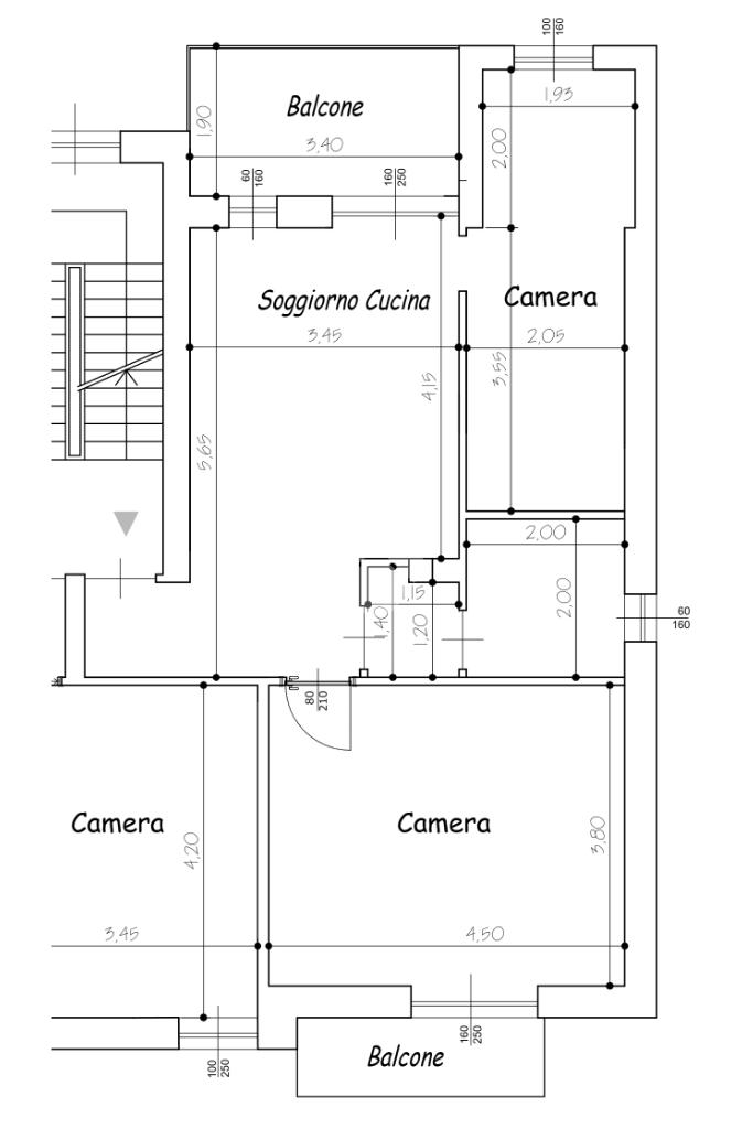
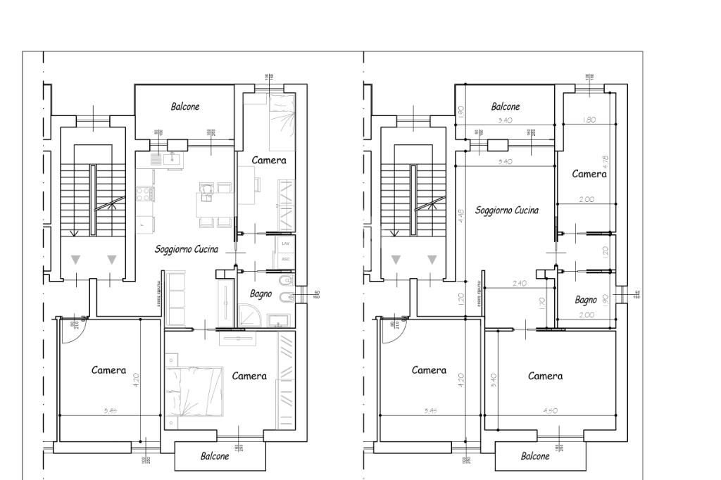
ULTIMA DISPONIBILITÀ – SECONDO ED ULTIMO PIANO

In una zona comoda a tutti i principali servizi di Trofarello, proponiamo in vendita un alloggio situato al secondo e ultimo piano di una palazzina completamente ristrutturata, ideale per chi desidera una casa moderna e funzionale senza rinunciare alla praticità.

L’ingresso si apre su una luminosissima cucina a vista, uno spazio accogliente e ben distribuito, con uscita diretta sul balcone, perfetto per godersi momenti di relax all’aria aperta. Un comodo disimpegno conduce alla zona notte, composta da due camere da letto, di cui una matrimoniale e una cameretta, ideali sia per una famiglia che per chi necessita di uno studio o stanza ospiti.

Il bagno finestrato, moderno e curato nei dettagli, è dotato di box doccia. Completa la proprietà la cantina al piano interrato.

Il riscaldamento è autonomo con caldaia a condensazione.

Predisposizione per impianto di condizionamento.

L’alloggio è attualmente in fase di completa ristrutturazione, offrendo la possibilità di vivere in una casa pari al nuovo, con finiture moderne e spazi studiati per il vivere quotidiano.
È inoltre possibile scegliere il capitolato e personalizzare la disposizione interna, ad esempio realizzando una zona giorno più ampia eliminando una delle camere, in base alle proprie esigenze abitative.

Una soluzione ideale per chi cerca comfort, modernità e una posizione strategica nel cuore di Trofarello.

Mostra tutto

Nelle vicinanze

Trasporto pubblico Trasporto pubblico
Trofarello
Trofarello
1,2 Km
Cambiano-Santena
Cambiano-Santena
2,4 Km
San Rocco
San Rocco
30 m
Rocchette
Rocchette
230 m
Ricariche auto elettriche Ricariche auto elettriche
Trofarello Battisti | EnelX
730 m
Trofarello Resistenza | EnelX
880 m
Trofarello Stazione | EnelX
1,1 Km
Tesla Supercharger Moncalieri - Tulip Inn Turin South Hotel
1,8 Km
Cambiano Triberti | EnelX
2,4 Km
Scuole Scuole
Scuola Secondaria I grado Giacomo Leopardi
600 m
Scuola primaria “Giovanni Pascoli”
1,7 Km
Scuola Elementare Giacomo Grosso
2,5 Km
Scuola Secondaria di I° Grado "L. Lagrange"
2,5 Km
Farmacia Farmacia
Farmacia Sant'Alberto
30 m
Farmacia Trisoglio
870 m
Farmacia
940 m
Farmacia Moriondo
1,4 Km
Farmacia Centrale
2,4 Km
Supermercati Supermercati
MD Trofarello
120 m
Non Solo Materassi
930 m
Supermercati
960 m
Mercatò Cambiano
2,8 Km
Negozi Negozi
Dico
2,5 Km
OVS
2,8 Km
Bar Bar
Bar Roma
1,0 Km
Ristoranti Ristoranti
Da Pia
170 m
Agriturismo Frutti Rossi
1,2 Km
Birreria Winchester
1,2 Km
D&D Pizzeria
2,4 Km
American Graffiti Diner
2,8 Km
Mostra tutto

Caratteristiche

Rif.:
61155486
Piano:
2 di 2 (ultimo Piano)
Balconi:
2
Camere da letto:
2
Arredamento:
Assente
Condizionamento:
Predisposizione impianto
Mostra tutto
Prezzo Prezzo
€ 129.000
Rata mutuo Rata mutuo
€ 613 / mese
Spese annue Spese annue
€ 600
Proponi il tuo prezzoProponi il tuo prezzo
Immobile valutato con T·Valuta

Classe Energetica

D
D
D
D
D
D
D
D
D
EP globale non rinnovabile:
25.00 kW h/m² anno
EP globale rinnovabile:
2.00 kW h/m² anno
EP invernale del fabbricato:
EP estiva del fabbricato:
Anno di costruzione:
1960
Riscaldamento:
Autonomo
Tipo impianto:
A radiatori
Tipo alimentazione:
Metano

Ti interessa visionare l'immobile?

Fissa un appuntamento  Fissa un appuntamento

Richiedi informazioni

Clicca su Leggi per aprire l'informativa
* Questi campi sono obbligatori

Calcola il tuo mutuo

Semplice e senza impegno
Anticipo

( % )
Mutuo

( % )

pochi semplici passi

inserisci i tuoi dati
Questionario completato
Grazie per aver richiesto un appuntamento senza impegno con un nostro Consulente del Credito e Assicurativo.

Hai inserito correttamente tutti i dati necessari e a breve riceverai una e-mail con un link da convalidare per inviare i tuoi dati.
Affiliato
Studio Trofarello Sas
Via Torino, 56 10028 Trofarello (TO)

Il nostro staff


  • Gianluca Castellaneta
    Affiliato

  • Roberto Piscitello
    Affiliato

  • Giada Cavaglià
    Collaboratrice

  • Greta Griffo
    Collaboratrice

  • Giorgia Scala
    Coordinatrice
Via Torino, 56 10028 Trofarello (TO)
Zona: Trofarello Cambiano
Mostra su mappa
Orari: lunedì -venerdì 09:00 - 12:30 e 15:00 - 19:30; sabato chiusura ore 18:00
Affiliato
Studio Trofarello Sas
Via Torino, 56 10028 Trofarello (TO)

2026 Tecnocasa Franchising S.p.A. - P. IVA 08365160152 - Via Monte Bianco 60/A 20089 Rozzano (MI). Ogni agenzia ha un proprio titolare ed è autonoma. Privacy policy | Policy utilizzo | Cookie policy